Budowa świetlicy w Wojtaszycach rozpoczęta!
Gmina Dobra w dniu 14 lutego br. otrzymała pozwolenie na budowę świetlicy wiejskiej wraz z zagospodarowaniem terenu w miejscowości Wojtaszyce.
W dniu 06 marca br. wykonawca robót – firma PRO GROUP Sp. z o.o. ze Szczecina oficjalnie rozpoczęła roboty budowlane. W chwili obecnej trwają prace ziemne, montaż zbiornika bezodpływowego oraz wykonanie instalacji wodociągowej i kanalizacyjnej.
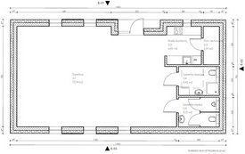
Budynek świetlicy wiejskiej w Wojtaszycach o pow. 119,4 m2, składał się będzie z głównego pomieszczenia o pow. 73 m2, aneksu kuchennego, łazienki damskiej i męskiej oraz pomieszczenia technicznego.
Dla budynku zaprojektowano instalację fotowoltaiczną (ok. 25 kW), oświetlenie zewnętrzne na elewacji budynku, i pochylnię dla osób niepełnosprawnych. Dodatkowo zaprojektowano miejsca parkingowe, w tym dla osoby niepełnosprawnej oraz miejsce gromadzenia odpadów.
Wartość całej inwestycji to 970 000,00 zł z czego 10% wartości inwestycji stanowi wkład własny Gminy Dobra, natomiast 90% to środki pozyskane przez Burmistrza z Programu Inwestycji Strategicznych – Polski Ład.


Dodaj komentarz
- to dla Ciebie staramy się być najlepsi, a Twoje zdanie bardzo nam w tym pomoże!